本網站僅提供設計老爹資訊參考平台, 並不涉入其中任何諮詢、交易。本網站對各該設計老爹相關資訊亦不作任何實質或形式上之審查。本網站中所載一切設計老爹的資訊、文字、照片、圖形 、產權、廣告內容、或其他資料(以下簡稱『內容』)。無論其為公開張貼或私下傳送,若有不實或違法情事,均為『內容』提供者之責任,設計老爹概不負責也不承擔任何法律責任。
文_余佩樺 圖片提供_耀昀創意設計
設計公司:耀昀創意設計
設計師:蔡昀璋
設計風格:休閒風
屋齡狀況:新成屋
空間坪數:約47坪
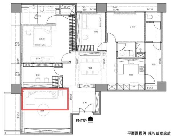
空間格局:玄關、客廳、餐廳、廚房、書房、主臥
居住成員:夫妻、小孩
主要建材:黑鏡、德國超耐磨木地板、V313進口板材、德國礦物無毒漆、LED、進口窗簾

櫃體機能做整合,並搭配黑鏡活動式拉門,彰顯質感品味,同時也能重新界定櫃子的使用機能。
面對忙碌而緊湊的生活,屋主夫妻渴望擁有一個能舒解壓力的空間,空間裡線條隨機能走,並在大地色系鋪排下,不但能盡情享受放鬆生活,整體還做到休閒與品味兼具。
List 設計師解讀屋主需求
1.簡約色系,創造放鬆休閒感生活
2.拉大空間尺度,豐富生活的可變性
3.空間中需規劃出書房、次臥與小孩房
本案屋主從事金融業,渴望回到家後能擁有一個徹底放鬆的空間,於是特別延請到耀昀創意設計來做規劃。設計師蔡昀璋從屋主的生活習慣與喜好來思考,不但為這個空間的動線做了配置,線條也隨機能而走,最後運用大地色系做勾勒,成功詮釋出品味與質感,更重要的是還充滿休閒、放鬆調性。

家具、燈具、掛畫勾勒空間,成就出現代風格居家,也間接帶出休閒、放鬆氛圍。
線條、色系打造品味居家力
在規劃前,屋主曾向設計師提及義大利家具品牌所創造出來的空間感受,於是,設計師便從這找尋創作靈感。他試圖讓線條隨機能走,將收納機能與空間規劃做結合,嵌入式手法來表現櫃體,櫃子有效包覆於壁面中,消弭掉原格局上凹凸崎嶇的壁面,還原出一個乾淨無瑕的清爽空間。透過機能所勾勒出來的線條,空間簡潔有力也饒富品味,然而設計師也特別留住大面窗景,引入採光也納入景色,同時也特別以大地色系來做鋪陳,注入溫暖情懷,更替現代環境裡增添放鬆與休閒的感受。
格局配置上,比較特殊的是,屋主還希望能擁有獨立書房,原本規劃為開放式,經過微調後,改成封閒獨立式,讓屋主在使用上能更加貼近需求。在架構完整個空間後,居家的品味則藉由家具、燈具的搭配來彰顯,另外也沒有忽略家飾的點綴,運用一些軟件家飾以及掛畫做搭配,吸睛也充滿質感味道。
設計 焦點×6
01 格局 空間線條隨機能走帶出大尺度感受
空間裡的線條隨機能而走,每一處的運用都富含了功能,有效維持整體美感,同時還能帶出寬敞、大尺度的空間感受。



02 格局 開放式設計,運用傢具界定小環境
公共區域以開放式手法呈現,為了維持整體寬敞感,運用家具、中島吧台來界定小環境,不影響使用動線,也能維持流暢。


03 色彩 善用色彩採配,滿足對家的放鬆渴望
在高壓環境下工作的上班族,總希望能期待在一天結束後回到家後,能徹底放鬆心情,因此設計師在空間的色彩配置上,以大地色系為主,米色、褐色等,一方面為空間注入更多的悠閒氛圍,另一方面對滿足屋主對家的放鬆渴望。


04 設計 嵌入式櫃體,讓空間線條更純淨
設計師將收納機能與空間做結合,於是將櫃體嵌入壁面中,不但消弭將原先的格局上過多凹凸崎嶇的感受,更還原出一個乾淨無瑕的清爽空間效果。櫃體設計也加入鏤空手法,不僅增加視線的穿透感,同時提升了整體的機能性。



05 設計 獨立書房,滿足使用需求
原本書房為開放式設計,經過微幅調整後,改成封閉且獨立形式,讓屋主能夠在這專心閱讀。運用木元素所規劃出來的書房,透過天然肌理與紋路,又再度靜靜地釋放出休閒的自然情調。


06 設計 大面窗景,增加空間溫度
空間裡盡可能保留大片落地窗或窗景,將陽光、自然綠意引進屋內,既可以帶給屋主不一樣的視覺享受,同時還能增加空間的溫度與自然味。


資料來源:漂亮居家雜誌(155期)
2026-02-03
位於台北市信義區的 40 坪北歐風居宅,設計師以輕淺色調為基底,同時融入俐落的天花線條,將收納隱於無形,且運用色塊、圖騰等元素,替每個場域建構視覺亮點,快一起走進來看看吧!
2026-02-03
位於台北市萬華區的 30 坪老屋,設計師以美式鄉村風為底調,並加入輕淺色彩、明亮採光等營造寬闊視感,同時善用空間條件做出收納機能,表現俐落乾淨的住宅表情,快一起走進來看看吧!
2026-02-03
位於台北市 14 坪的小套房,是專屬於夫妻的甜蜜空間,設計師看見主柱內放的優勢,利用 LOFT 風將視覺空間變得更寬敞,巧手打造通透感十足、動線順暢的 LOFT 風兩人世界。