圓舞設計作品--設計老爹-室內設計入口平台
形象首頁

紅殼設計

首頁

FB分享連結
LINE分享連結

設計作品:0個 483張圖片

局部費用:

設計費用:

接案地區:

公司地址:台北市松山區民族東路689號1F

服務專線:02-26068524

    服務項目

    特別關鍵字

    免責聲明

  • 本網站僅提供設計老爹資訊參考平台, 並不涉入其中任何諮詢、交易。本網站對各該設計老爹相關資訊亦不作任何實質或形式上之審查。本網站中所載一切設計老爹的資訊、文字、照片、圖形 、產權、廣告內容、或其他資料(以下簡稱『內容』)。無論其為公開張貼或私下傳送,若有不實或違法情事,均為『內容』提供者之責任,設計老爹概不負責也不承擔任何法律責任。

分享到: FB/ LINE

圓舞 Waltz

紅殼設計

瀏覽人數 : 131

首頁 >找作品 >居家設計 >其他 >21~30坪 >201~300萬 >新竹縣竹北市

分類RESIDENTIAL
屋況居家設計
風格其他
縣市新竹縣竹北市
預算201~300萬
坪數21~30坪
3房 2廳 2衛
設計概念
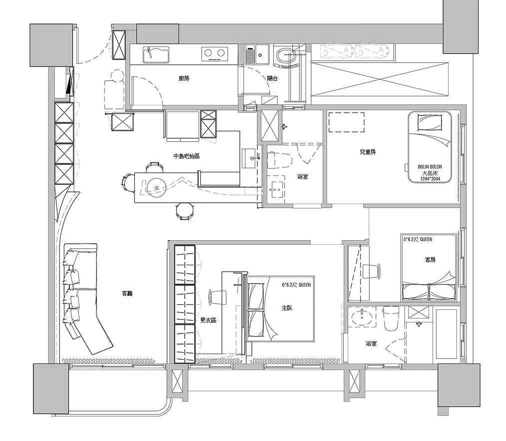
設計面積|26坪
室內面積|約31坪
格局|3房 2廳 1更衣間 2衛
主要材料|鐵件、塗裝板、礦物塗料、無縫地坪

這是一個以8個圓弧打造出的家,圓弧中,有前後相倚的,有左右連綿的,有獨自垂立的,宛如華爾滋般交替舒展在這個家中。

成就一個家的過程好比雙人共舞,前進後退都在夫妻二人默契下轉動完成,這個案子概念始於設計師對屋主夫妻的祝福:圓滿邁進

圓滿不意謂著無缺角,
而是走過看過的圓融。

入門玄關就以一個大弧天花過渡到客餐廳區,客廳區則以延伸至窗邊的雙層弧形牆作為沙發背牆。

有別於市場上大部分住家以電視為中心的做法,屋主一開始就決定捨棄掉電視的配置,僅以隱藏在電視牆下的近焦投影機滿足視聽需求,反讓整個家的中心導向中島吧台區。

在已有TOCLAS內廚房的情況下,我們規劃出一個結合餐桌的外吧台區,並將敲敲門冰箱結合進此區設計內,既完善吧台區的功能,方便男主人小酌的習慣,內廚也可近距離使用。

中島吧台區視覺上採用雕塑的手法,以兩個連續的大弧線試圖控制人視線聚集的方向,同時利用翻花技術控制木紋的對花效果以強化視覺方向。

這些設計手法都在強調中島餐桌於這個家的核心意義,並幫助一旁的走廊不再只是過道功能。

施工上結合了木作、鐵件、系統櫃、石材、人造石、特殊塗料打造而成。

木作弧形桌腳控制在適當厚度內 ,需既有結構作用,又需退出兩側座椅深度,為防大理石桌板碎裂,鐵件埋入支撐也是必需的。

而餐桌面特別選用斜向花紋的黃色系大理石,捨棄亮面加工,採用微亮的淺仿古表面,搭配乳白色的 丹麥 ASTEP Model 2065 吊燈,使整體氛圍越發氣質有格調。

關於私領域空間,主臥更衣室結合次書房功能,與臥床區的隔屏保留一小扇窗可相望,並使柔紗簾連綿不斷,確保面窗立面的完整性。

好的設計要執行成功還需經過一連串的計算,將所有材料厚度、尺寸計算入內,還需不忘放入變數,反覆推敲 ,才能剛剛好的圖文相符。
  • 圓舞作品1
  • 作品4
  • 作品4
  • 作品4
  • 作品4
  • 作品4
  • 作品4
  • 作品4
  • 作品4
  • 作品4
  • 作品4
  • 作品4
  • 作品4
  • 作品4
  • 作品4
  • 作品4
  • 作品4
  • 作品4
  • 作品4
  • 作品4
  • 作品4
  • 作品4
  • 作品4
  • 作品4
  • 作品4
我要估價