旖旎人生設計作品--設計老爹-室內設計入口平台
形象首頁

紅殼設計

首頁

FB分享連結
LINE分享連結

設計作品:0個 483張圖片

局部費用:

設計費用:

接案地區:

公司地址:台北市松山區民族東路689號1F

服務專線:02-26068524

    服務項目

    特別關鍵字

    免責聲明

  • 本網站僅提供設計老爹資訊參考平台, 並不涉入其中任何諮詢、交易。本網站對各該設計老爹相關資訊亦不作任何實質或形式上之審查。本網站中所載一切設計老爹的資訊、文字、照片、圖形 、產權、廣告內容、或其他資料(以下簡稱『內容』)。無論其為公開張貼或私下傳送,若有不實或違法情事,均為『內容』提供者之責任,設計老爹概不負責也不承擔任何法律責任。

分享到: FB/ LINE

旖旎人生 F Residence

紅殼設計

瀏覽人數 : 122

首頁 >找作品 >居家設計 >其他 >21~30坪 >201~300萬 >新竹縣竹北市

分類RESIDENTIAL
屋況居家設計
風格其他
縣市新竹縣竹北市
預算201~300萬
坪數21~30坪
2房 2廳 2衛
設計概念
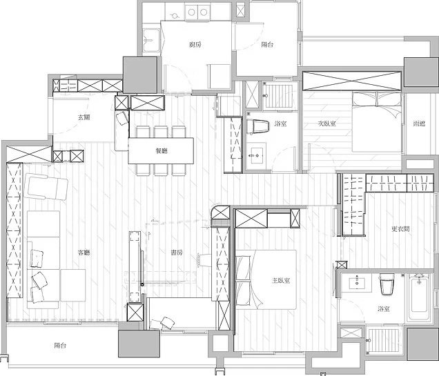
設計面積|26坪
室內面積|約31坪
格局|2房 2廳 1書房 1更衣間 2衛
主要材料|鐵件、塗裝板、礦物塗料

生活想像|不同階段的人生

隨著兒女長大,迎來退休生活的屋主夫婦,對退休後的家充滿不同的生活想像。

女主人喜愛在餐桌區一邊追劇一邊享受做甜點的時光,偶而在書桌邊練練字帖;老小孩似的男主人則熱愛音樂,即使搬了新居也不忘帶上陪伴他多年的音箱,窗邊臥榻區會是他平日享受音樂,消磨光陰的好去處。

退休宅|久違的任性

不同於剛新婚的家庭,因兒女已獨立,退休宅的空間自由度反而更高。取消原先書房實牆改以活動隔間形塑,搭配可旋轉的電視柱,破除原先個別小空間的過度分離感,光影也可更自由隨意的流轉於公領域間。

除了符合退休宅對於空間容納量時大時小的彈性需求外,也允許兒孫滿地恣意爬滾的可能性在此發生。

正方形格局|突圍方式

接近正方形的公領域空間恰是最難設計的空間格局,尤其當目標是將多個機能空間(玄關、客廳、書房、餐廳)同時放在一個大開放空間內時,如何劃分空間、動線流暢性及收納規劃是重要課題。

本案特意運用多種材料、顏色的異質同調感,微妙過渡這些大大小小的進出面,相較整體感較一致的立面整合方式,反而豐富了陰影表情,不顯單調無聊。

退休宅並非都是沉穩的空間感受,靜謐中帶著浪漫,享受著悠閒退休日常的同時也可以生活得很精彩 。
  • 旖旎人生作品1
  • 作品4
  • 作品4
  • 作品4
  • 作品4
  • 作品4
  • 作品4
  • 作品4
  • 作品4
  • 作品4
  • 作品4
  • 作品4
  • 作品4
  • 作品4
  • 作品4
  • 作品4
  • 作品4
我要估價